1 bedroom Penthouse in Torrevieja

  • €269,000
Playa de El Cura, Torrevieja, Spain
For Sale New Build

1 bedroom Penthouse in Torrevieja

Playa de El Cura, Torrevieja, Spain
  • €269,000

Overview

  • Penthouse
  • Property Type
  • 1
  • Bedroom
  • 1
  • Bathroom
  • 64
  • 1C-N9420
  • Property ID

Description

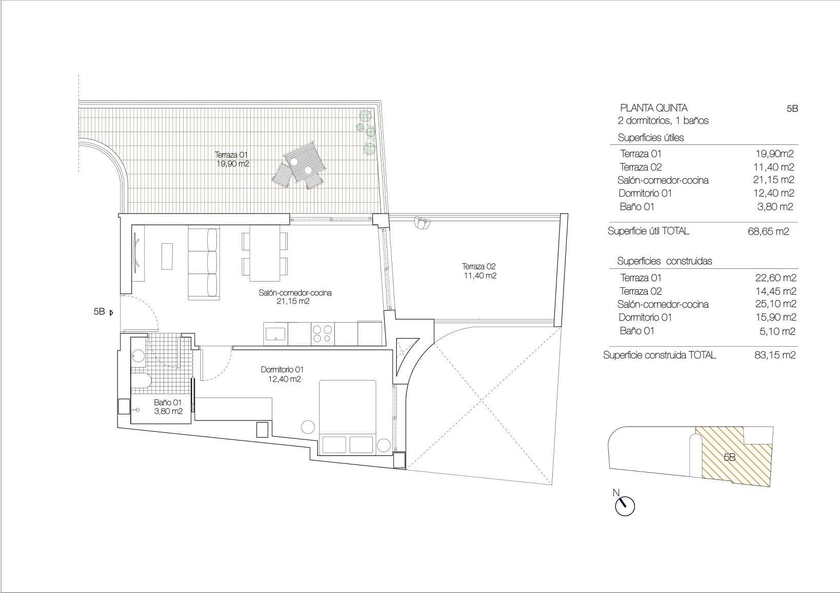
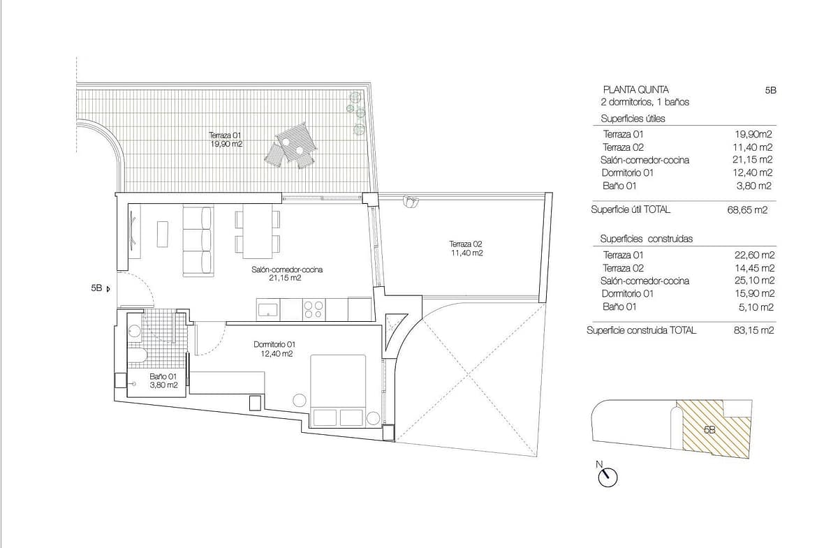
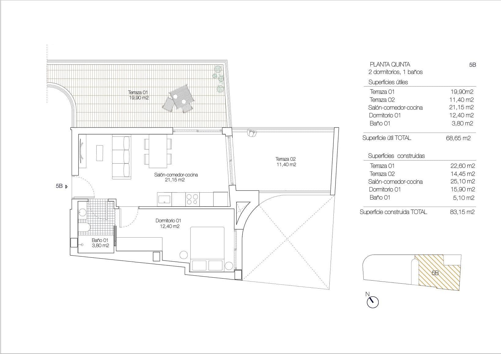
Modern Apartments Just 250m from El Cura Beach in Torrevieja New Development in Prime Location This newly built apartment building is located just 250 meters from the famous El Cura Beach in Torrevieja, offering residents easy access to one of the most popular beaches in the area. The building consists of 17 units, featuring 1 and 2-bedroom apartments, each with 1 or 2 bathrooms. Additionally, there are penthouses available with private solariums and stunning sea views, perfect for enjoying the Mediterranean lifestyle. Premium Amenities for Relaxation Residents can take advantage of the rooftop community pool and solarium, ideal for unwinding after a day at the beach. The building also offers optional underground parking spaces and storage rooms, available for an additional cost, providing extra convenience and security for residents. Vibrant City Life in Torrevieja Torrevieja is a lively city known for its year-round cultural and recreational activities, making it a great destination for both permanent residents and vacationers. With a mild climate and over 300 days of sunshine annually, the area is perfect for those who enjoy outdoor activities and beach life. Ideal Location with Easy Access to Points of Interest This property is ideally located close to all essential services, including supermarkets, restaurants, and entertainment venues. Major points of interest are easily accessible: Alicante Airport is just 45 km away. Several Golf Courses within 7-10 km. Zenia Boulevard Shopping Center is only 8 km away. The port of Torrevieja is just 2 km from the building. Enjoy modern living by the sea in a vibrant and well-connected area with everything you need just a short distance away.

Details

Updated on February 14, 2026 at 12:36 am
  • Property ID: 1C-N9420
  • Price: €269,000
  • Property Size: 64 m²
  • Bedroom: 1
  • Bathroom: 1
  • Property Type: Penthouse
  • Property Status: For Sale

Energy Class

  • Energetic class: B
  • Global Energy Performance Index:
  • A+
  • A
  • | Energy class B
    B
  • C
  • D
  • E
  • F
  • G
  • H
  • Pending
POWERED BY HABENO

Compare listings

Compare
1st Casa
  • 1st Casa