2 bedroom Apartment in Avileses

  • €100,000
Avileses, Pueblo, Spain
For Sale New Build

2 bedroom Apartment in Avileses

Avileses, Pueblo, Spain
  • €100,000

Overview

  • Apartment
  • Property Type
  • 2
  • Bedrooms
  • 1
  • Bathroom
  • 52
  • 1C-N9369
  • Property ID

Description

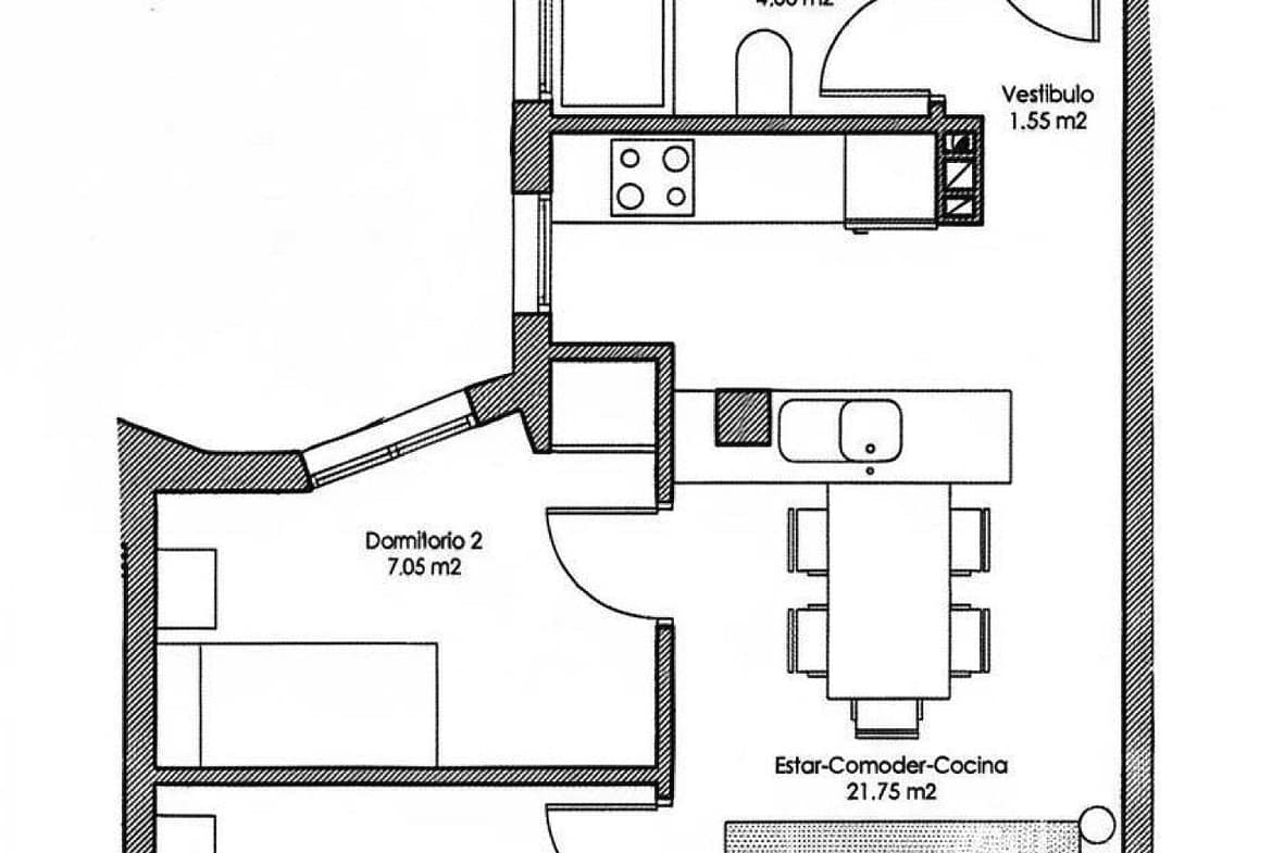
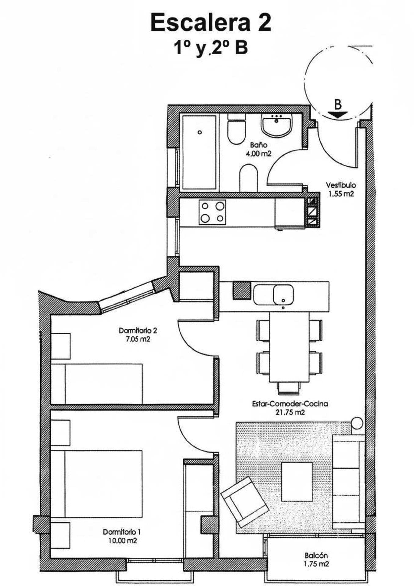
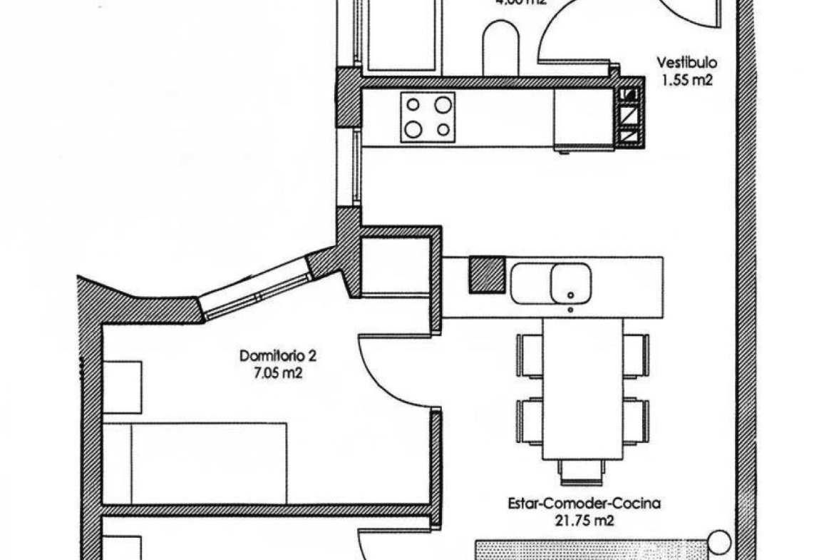
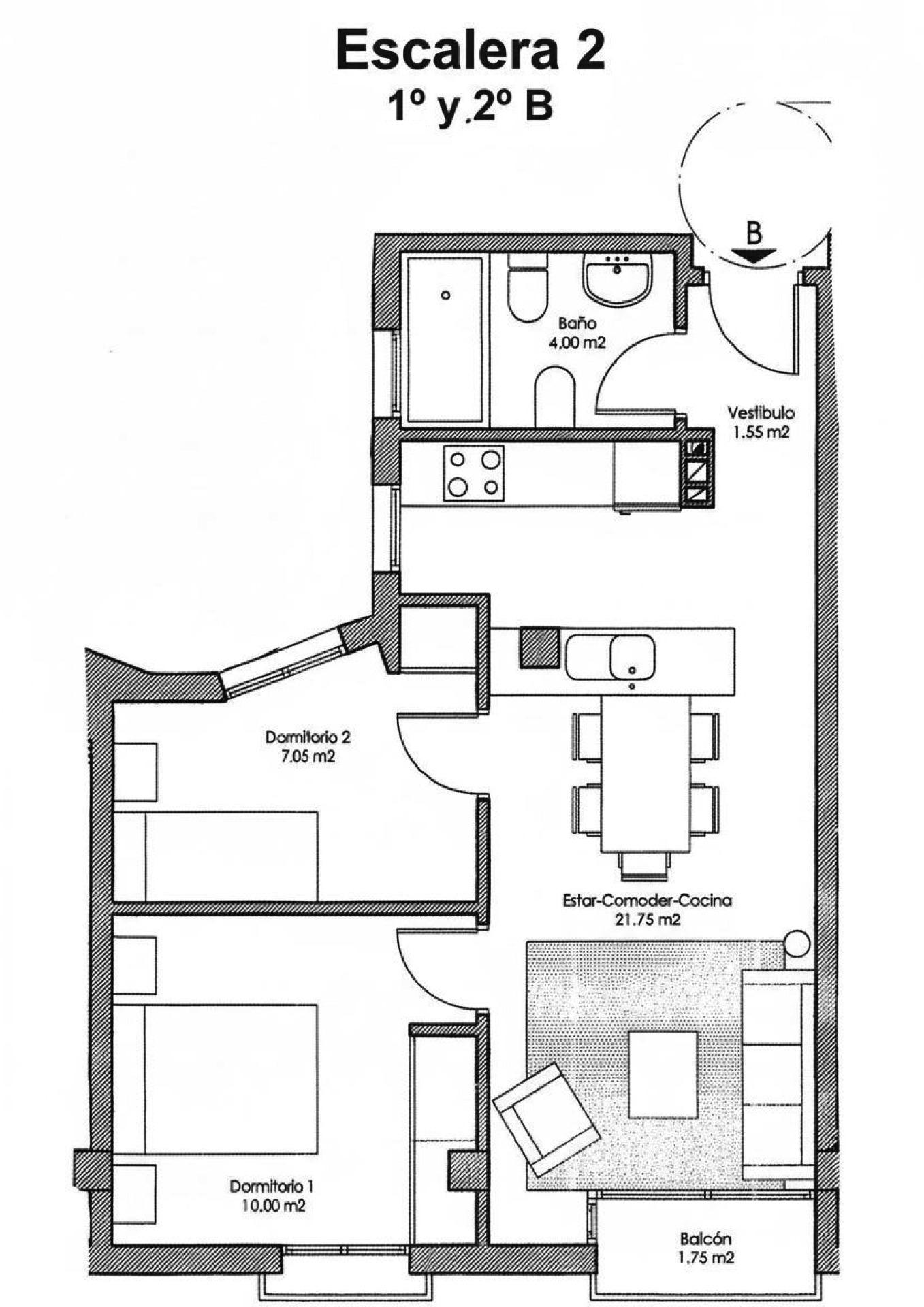
New Build Apartments for Sale in Avileses Murcia: Excellent Investment Opportunity Residential Building with 19 Newly Built Apartments This new build development in Avileses Murcia offers a selection of 19 apartments designed to provide comfort, practicality and excellent value. Buyers can choose from one, two and three bedroom homes with one or two bathrooms, making it an ideal option for couples, families or investors seeking an affordable property in a well connected location. The building includes a lift for easy access to all floors and some units feature a private parking space. Quality Finishes and Optional Kitchen Packs All apartments come with preinstallation for air conditioning, ensuring year round comfort. Kitchens are delivered unfurnished, giving buyers the flexibility to personalize their space. For added convenience, there is an optional upgrade pack available which includes kitchen furniture, appliances, bathroom cabinet with mirror and shower screens. This pack starts at 5200 euros for one bedroom units, offering excellent value and a turnkey option for future residents. Prime Location in the Centre of Avileses The building is located in the heart of Avileses, a peaceful village belonging to the municipality of Murcia. Its central location places daily amenities within walking distance, including supermarkets, cafes, restaurants and local services. The area is known for its relaxed lifestyle, agricultural surroundings and proximity to several renowned golf courses such as Peraleja Golf 6 km and New Sierra Golf 8 km. The beautiful beaches of the Mar Menor and Mediterranean coastline are also within easy reach at approximately 20 km. Excellent Connectivity Across the Region Avileses benefits from convenient road connections to nearby towns and key destinations throughout Murcia. Notable points of interest include Balsicas train station 7 km San Javier 14 km San Pedro del Pinatar 22 km Murcia city centre 29 km Aeropuerto Internacional de Murcia Corvera 16 km With easy access to major roads, residents can enjoy quick travel to shopping centres, leisure areas, golf resorts and coastal attractions. Affordable New Build Homes Ready in January 2026 This development represents a rare opportunity to purchase a brand new home in Murcia at an exceptional price. Whether you are looking for a permanent residence, a holiday base or a rental investment, these apartments offer strong potential in a growing area. Contact us today for more information or to reserve your unit before completion.

Details

Updated on April 28, 2026 at 12:50 am
  • Property ID: 1C-N9369
  • Price: €100,000
  • Property Size: 52 m²
  • Bedrooms: 2
  • Bathroom: 1
  • Property Type: Apartment
  • Property Status: For Sale

Energy Class

  • Energetic class: B
  • Global Energy Performance Index:
  • A+
  • A
  • | Energy class B
    B
  • C
  • D
  • E
  • F
  • G
  • H
  • Pending
POWERED BY HABENO

Compare listings

Compare
1st Casa
  • 1st Casa