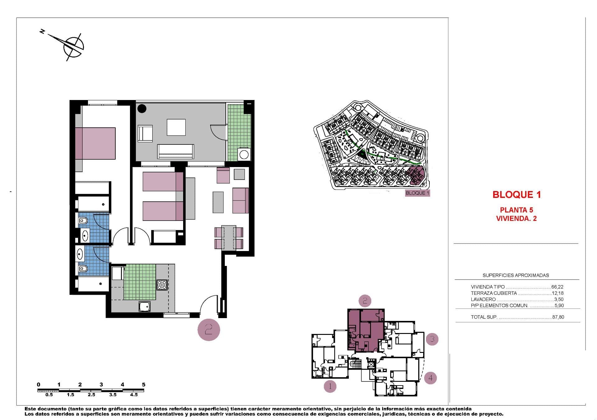
2 bedroom Penthouse in Pilar De La Horadada

  • €445,000
Mil Palmeras, Pilar de La Horadada, Spain
For Sale New Build

2 bedroom Penthouse in Pilar De La Horadada

Mil Palmeras, Pilar de La Horadada, Spain
  • €445,000

Overview

  • Penthouse
  • Property Type
  • 2
  • Bedrooms
  • 2
  • Bathrooms
  • 87
  • m²
  • 1C-N8578
  • Property ID

Description

New Build Apartments and Bungalows in Mil Palmeras

Modern Residential Complex in a Prime Location
Discover a stunning new residential complex in the charming coastal area of Mil Palmeras, offering a selection of high-quality apartments and bungalows designed to meet modern living standards. Nestled just 600 meters from the sandy beaches of Mil Palmeras, this development combines comfort, style, and convenience.

Spacious and Stylish Apartments and Bungalows
Choose from 2- or 3-bedroom apartments, each featuring 2 bathrooms and spacious terraces. Alternatively, opt for bungalows with 2 bedrooms and 2 bathrooms, available in ground-floor units with private gardens or top-floor units with exclusive solariums.

High-Quality Finishes for Modern Living
This development offers exceptional features and finishes:
PVC exterior carpentry with thermal break and double-glazed “Climalit” low-emissivity windows.
Reinforced entrance doors for added security.
Bathrooms equipped with vanities, mirrors, and modern fixtures.
Built-in wardrobes with interior LED lighting, drawers, and hanging rails.
Hot water supplied through aerothermal technology for energy efficiency.
Pre-installation for ducted air conditioning and heating in living areas and bedrooms.
Exclusive Community Amenities

The complex is fully gated and boasts:
Beautifully landscaped communal gardens.
Sparkling swimming pools for residents.
Optional underground parking spaces and storage rooms for added convenience.

Prime Location in Mil Palmeras
Located between Campoamor and Torre de la Horadada, this development offers easy access to local amenities, schools, restaurants, and sports facilities open year-round. Mil Palmeras is known for its charming town square and its vibrant “restaurant alley,” featuring diverse international cuisines.

For nature enthusiasts, the Lo Monte Nature Park, a protected bird reserve, and the RĂ­o Seco Natural Park offer perfect spots for hiking and relaxation.

Proximity to Key Points of Interest
Murcia International Airport: 40 km (approx. 45 minutes).
Alicante Airport: 75 km (approx. 45 minutes).
Closest golf courses: Less than 10 km away.
Shopping centers: 8 km to Zenia Boulevard.
Marinas and ports: 5 km to Torre de la Horadada.

Your Dream Home Awaits
Don’t miss the opportunity to own a property in this exceptional residential complex. Whether you’re looking for a vacation home or a permanent residence, this development in Mil Palmeras has it all. Contact us today for more information or to schedule a visit!

Details

Updated on December 13, 2025 at 12:32 am
  • Property ID: 1C-N8578
  • Price: €445,000
  • Property Size: 87 m²
  • Bedrooms: 2
  • Bathrooms: 2
  • Property Type: Penthouse
  • Property Status: For Sale

Energy Class

  • Energetic class: B
  • Global Energy Performance Index:
  • A+
  • A
  • | Energy class B
    B
  • C
  • D
  • E
  • F
  • G
  • H
  • Pending
POWERED BY HABENO

Compare listings

Compare
1st Casa
  • 1st Casa