3 bedroom Penthouse in Villajoyosa

  • €730,000
Playa del Torres, Villajoyosa, Spain
For Sale New Build

3 bedroom Penthouse in Villajoyosa

Playa del Torres, Villajoyosa, Spain
  • €730,000

Overview

  • Penthouse
  • Property Type
  • 3
  • Bedrooms
  • 2
  • Bathrooms
  • 115
  • 1C-N7278
  • Property ID

Description

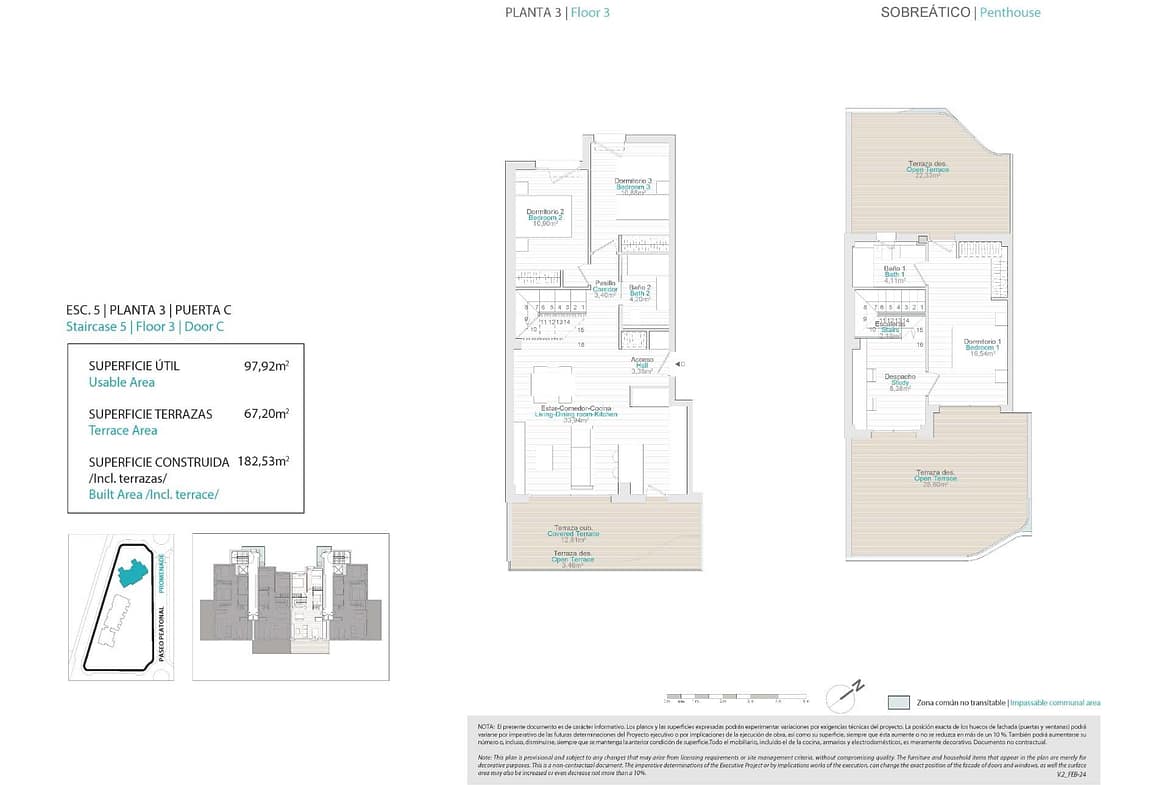
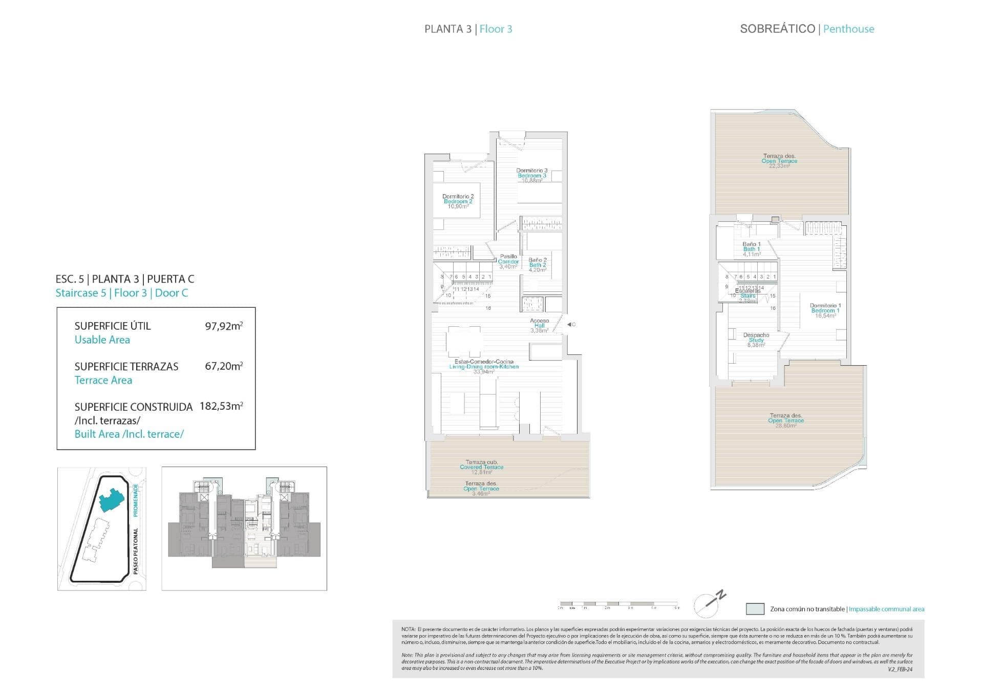
NEW BUILD COMPLEX IN VILLAYOJOSA New Build residential complex of 42 apartments and penthouses in Villayojosa located few steps from the beach. Luxury properties with 1, 2 and 3-bedrooms designed down to the smallest detail. Just 200 meters from the sea, with spacious terraces are perfect for relaxing and enjoying the sea views. Located in a natural environment, this promotion has a swimming pool, gardens, children’s area, equipped gym and sauna. Ground floor properties with 1 bedroom and 1 bathroom with terraces and private gardens. Apartments with 1 and 2 bedrooms and 1 and 2 bathrooms with large terraces where you have a covered area and an open area. Penthouses with 3 bedrooms and 2 bathrooms with terraces and private solariums. All properties has private parking space. Villajoyosa is a hidden pearl on the Spanish Costa Blanca. This colourful fishing village is located between Benidorm and El Campello, about 30 minutes by car from Alicante airport. In recent years, the idyllic town has become a sought-after location for second-home residents and tourists. Villajoyosa has a lot to offer, from the wide sandy beach to the narrow and colourful streets of the historic town centre. Today, more than thirty thousand people live in Villajoyosa and, above all, the colourful houses offer tons of inspiration for the many artists. Villajoyosa is also known for its delicious Valor chocolate factory museum.

Details

Updated on April 28, 2026 at 12:50 am
  • Property ID: 1C-N7278
  • Price: €730,000
  • Property Size: 115 m²
  • Bedrooms: 3
  • Bathrooms: 2
  • Property Type: Penthouse
  • Property Status: For Sale

Energy Class

  • Energetic class: B
  • Global Energy Performance Index:
  • A+
  • A
  • | Energy class B
    B
  • C
  • D
  • E
  • F
  • G
  • H
  • Pending
POWERED BY HABENO

Compare listings

Compare
1st Casa
  • 1st Casa