8 bedroom Villa in Finestrat

  • €4,450,000
Finestrat, Spain
For Sale New Build

8 bedroom Villa in Finestrat

Finestrat, Spain
  • €4,450,000

Overview

  • Villa
  • Property Type
  • 8
  • Bedrooms
  • 5
  • Bathrooms
  • 998
  • 1C-N7072
  • Property ID

Description

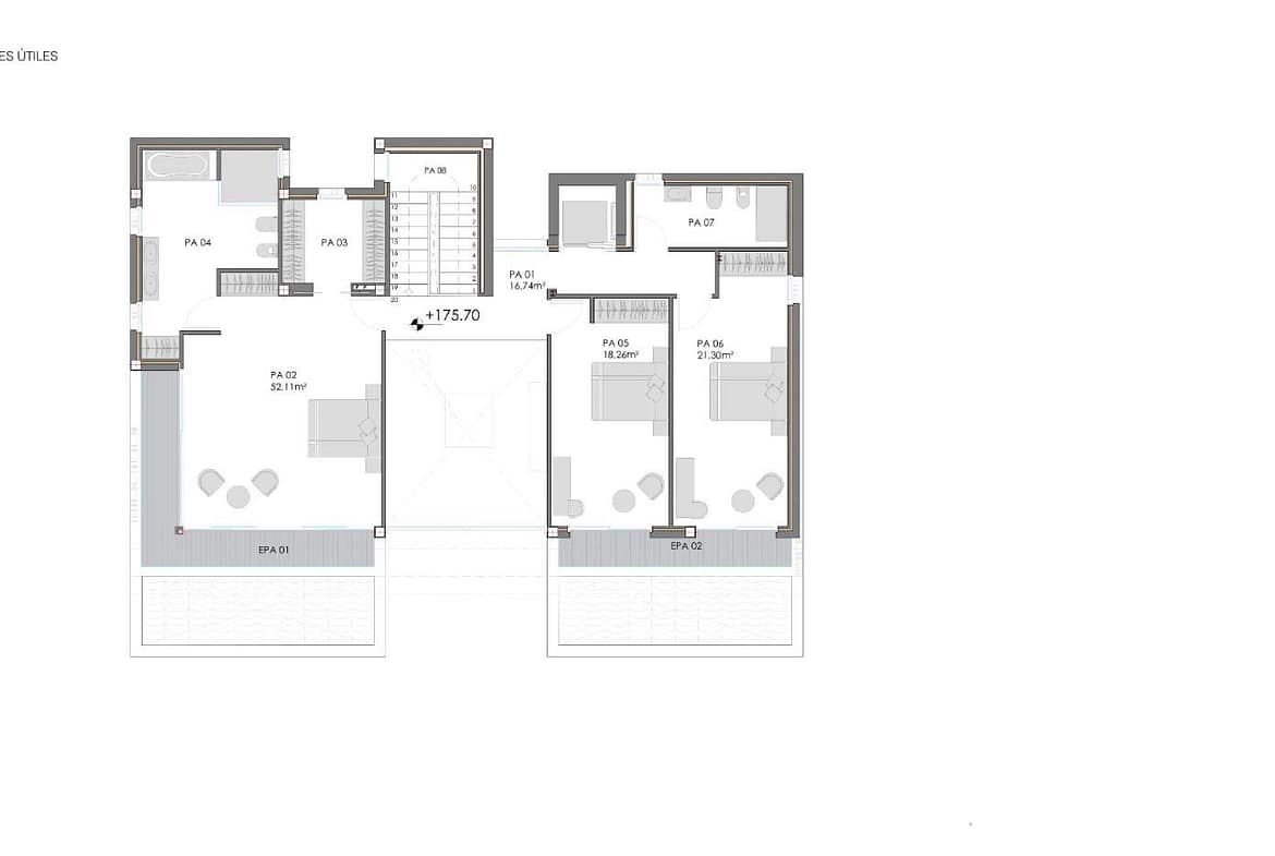
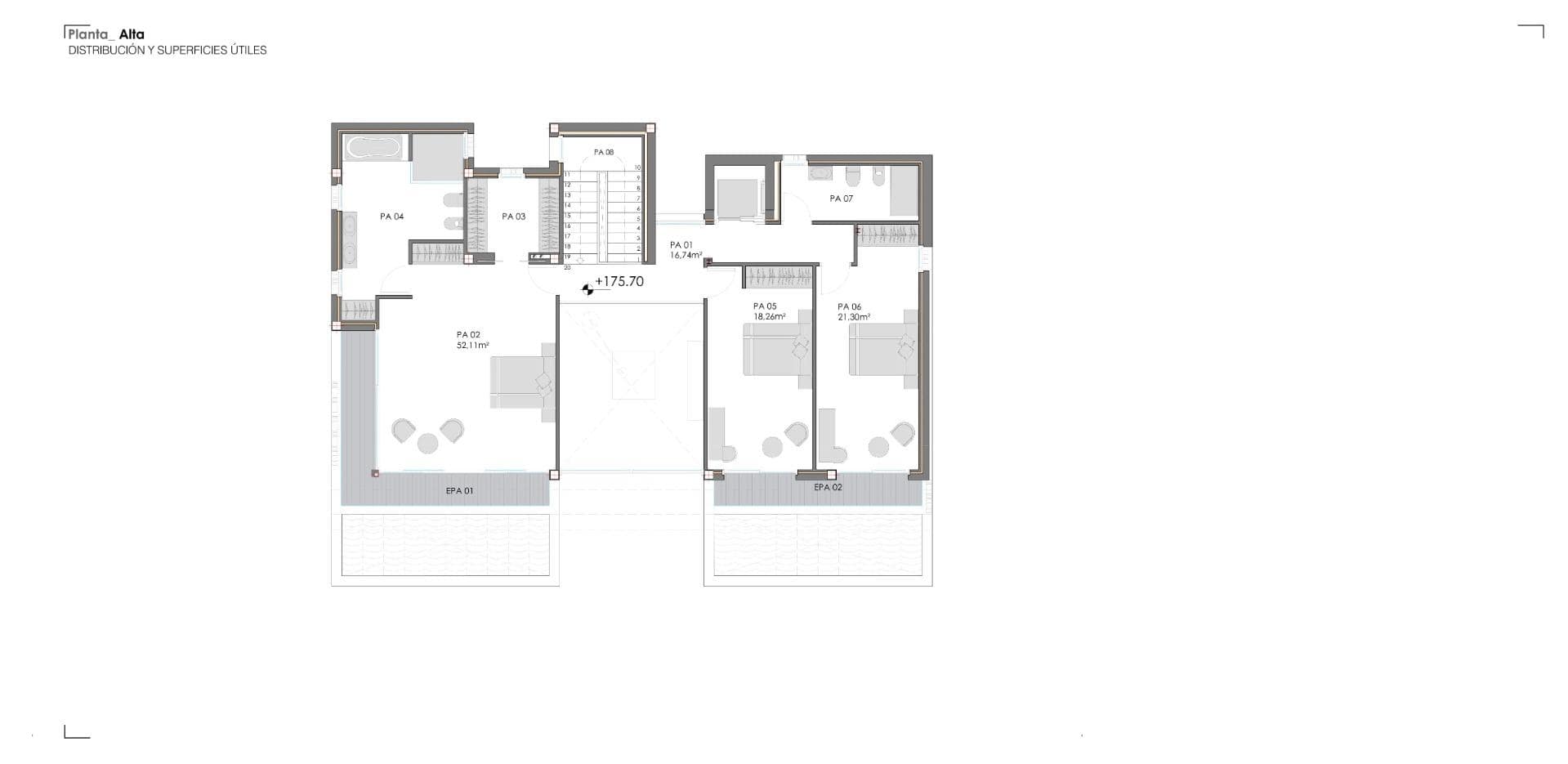
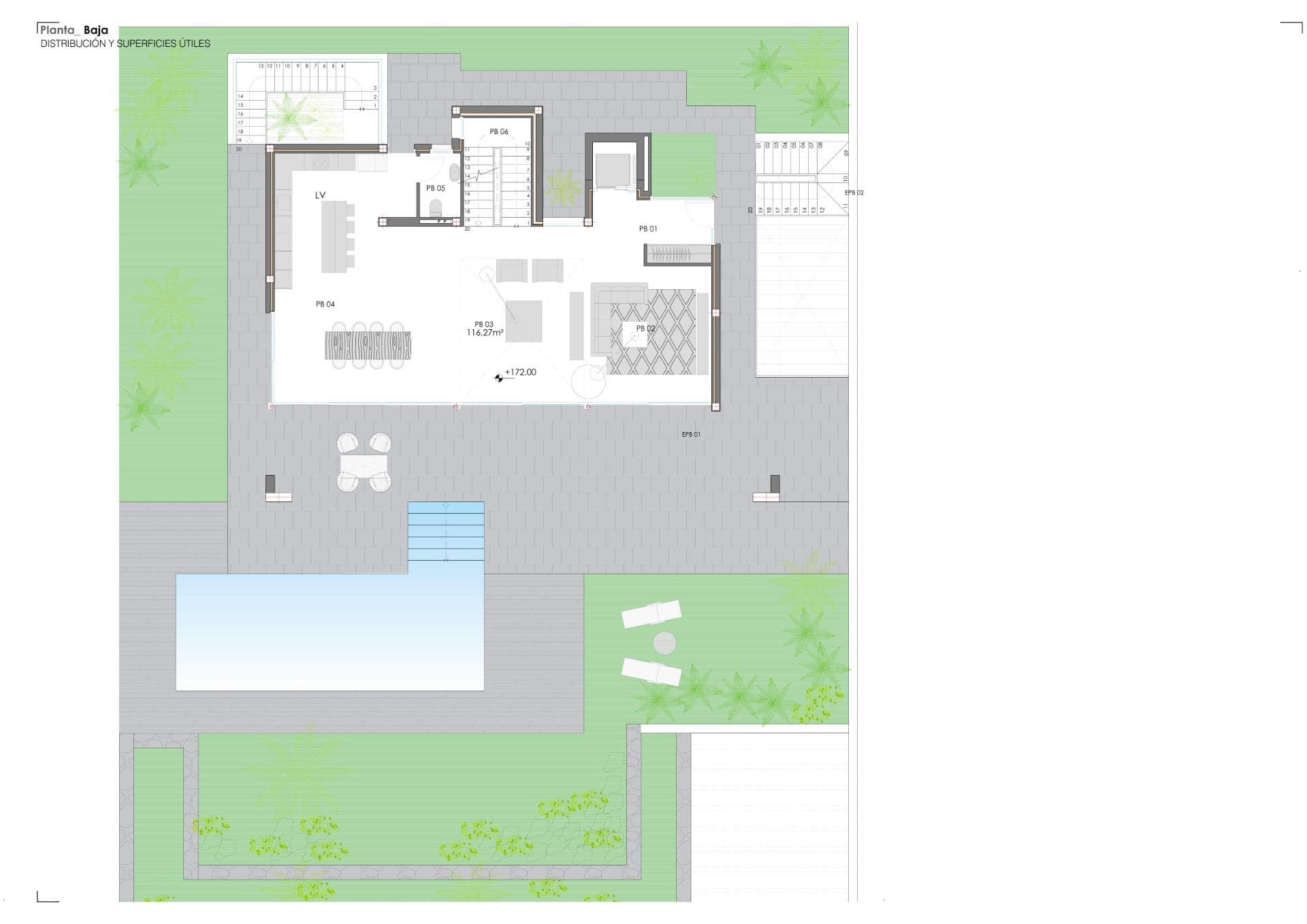
NEW BUILD LUXURY VILLA IN FINESTRAT WITH THE SEA VIEWS New Build Luxury villa with the sea views in Sierra Cortina, Finestrat. Arriving at the Urbanisation there is a natural stone wall with a height of 7 metres and the automatic access gates to the villa arriving at the covered garage at street level with double height, natural light and garden with palm trees of different heights of 180 m2, a glazed room of 78 m2 with lift, interior staircase, cloakroom and enough space to put armchairs, convert this space into an office or simply a waiting room for visitors. The next floor of 190 m2 of enclosed space is located below the plot level but 3 metres above the street level and therefore with natural light. It can be accessed by lift or staircase inside the villa, or by the staircase outside the garage, in the latter case you can only access the exterior corridors, the installations room or the main door of this floor, thus making the maintenance of the house without the need to enter inside the house. Inside this floor we will find 4 spacious bedrooms, living room with English patio of 17 m2 with the stairs to the plot, laundry, 2 bathrooms, exterior corridors of 40 m2 and installations room. When we go up to the main floor by 3 access ways we see a living room of 130 m2 with double light, open kitchen, guest toilet, panoramic sea views, and swimming pool of 54 m2 of laminate, a beautiful garden and 2 large covered terraces. To the bedrooms floor we access by lift or interior staircase where we will see a Master Bedroom of more than 50 m2 with en-suite bathroom, dressing room and terrace, two bedrooms of about 20 m2 each one, a bathroom and the terrace for these bedrooms. Villa is equipped with Led exterior and interior, underfloor heating, domotics, high Gamma crystals, centralized air conditioning, automatic blinds, high ceilings and much more: Living room- 95 m2 Bedrooms- 8 (main 52 m2 and secondary 20 m2) Bathrooms- 5 Plot- 890 м2 Built- 998 м2 Swimming pool- 12 X 5 Four Floors Garden (20 m2) – fully finished with automatic irrigation system Lift (Otis) inside the house Underfloor heating Domotics (control of air conditioning, underfloor heating, interior and exterior lighting, blinds) Electric blinds Exterior and interior lights brand name Siemens High ceilings up to 3,20 m high Impressive sea view One floor for guests Aerothermal heating Fully fitted kitchen with island Fitted wardrobes Porcelain tiled floor Wall with natural stone hand carved Garage for 4 vehicles with automatic doors 160 m2 + entrance hall 78 m2 Open parking 37 Villa located in the Sierra Cortina resort complex, ​next to two golf courses, theme parks, a large shopping centre and a few minutes from the beaches of Benidorm. Finestrat located in the Marina Baixa region of the Costa Blanca, close to neighbouring Benidorm and about 40 kilometres from the city of Alicante and the international airport. The village is situated on the mountainside of Puig Campana and offers beautiful views of the mountains, the coast and the Mediterranean Sea.

Details

Updated on April 23, 2026 at 12:32 am
  • Property ID: 1C-N7072
  • Price: €4,450,000
  • Property Size: 998 m²
  • Land Area: 890 m²
  • Bedrooms: 8
  • Bathrooms: 5
  • Property Type: Villa
  • Property Status: For Sale

Energy Class

  • Energetic class: B
  • Global Energy Performance Index:
  • A+
  • A
  • | Energy class B
    B
  • C
  • D
  • E
  • F
  • G
  • H
  • Pending
POWERED BY HABENO

Compare listings

Compare
1st Casa
  • 1st Casa